Automatyczne otwieranie wlewu paliwa i bagażnika
Witam kolegów,
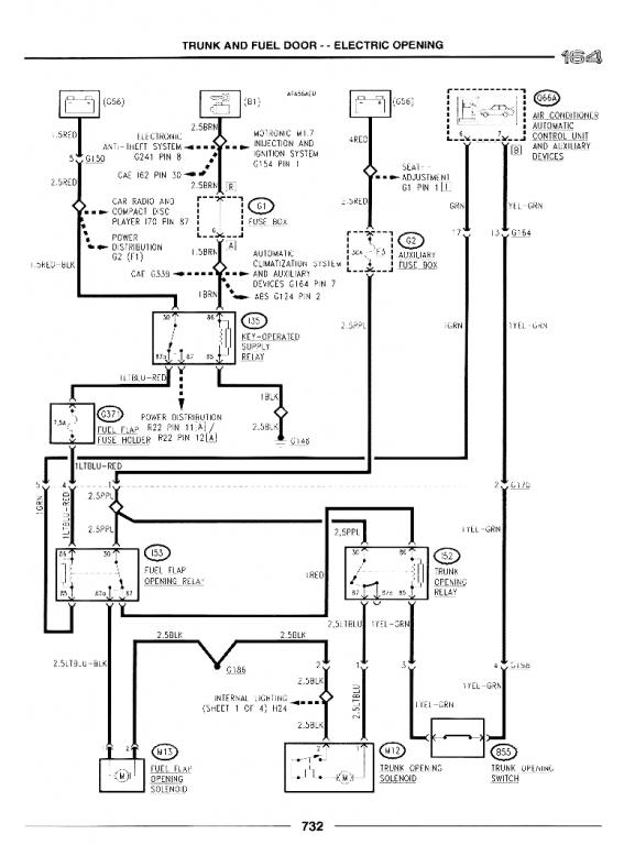
Mam kolejny, nietypowy kłopot z moją bellą :-) Tak właściwie to staram się jądoprowadzić do perfekcji, mechanicznie jest ok, nie działają jedynie drobnostki. Szukałem porad w necie ale wszelkie dotyczą tych tematów 166, 255 itd, nie ma nic o 164. Do rzeczy... nie działa mi otwieranie elektryczne (z wnętrza, z przycisku) wlewu paliwa oraz klapy bagażnika. Wiem że wlew paliwa można otworzyć sznurkiem w bagażniku. Zauważyłem też, że wciskając przycisk otwierania bagażnika na konsoli nie zapala się na nim zielona lampka. Moje pytanie - czy kojarzy ktoś czy te dwie rzeczy (wlew + bagażnik) są na jakimś jednym bezpieczniku? Może to kwestia wymiany bezpiecznika lub jakiegoś przekaźnika? Przerabiał ktoś podobny temat? Nie wiem nawet od czego zacząć poszukiwania, będę wdzięczny za wszelkie wskazówki :-)
Dzięki i pozdrawiam!!!