Odkopie z czeluści żeby nie dublować
Da się jakoś to zaadaptować do 159??
Jeżeli jest coś takiego w Brerze, a wiadomo, że jest, to na pewno da się to zrobić w 159. To jest kwestia body komputera- a przecież są te same.
Kwestia tylko ogarnięcia odpowiedniej opcji w MES... z tego co wiem to na tę chwilę nikt tego komputerowo nie rozszyfrował. Na bank to jest możliwe.
Jedyna nadzieja to albo producent oprogramowania MES (ale oni bardziej się skupiają na nowych samochodach), lub ktoś taki jak kolega mały_777, który chyba ostatnio zamilknął.
Istnieją też moduły, które pozwalają na takie rzeczy. Może komuś udało się w końcu taki zamontować?
Ja nie kombinowałem.
Teraz auto ma już 11 lat... i te silniczki do składania lusterek ledwo działają.
Ktoś je próbował jakoś smarować/poprawić albo coś? Psikam czasem w miejscu przy składaniu... ale to na chwile poprawia temat.
Pewnie psikasz czymś w stylu WD40... a to raczej trzeba nasmarować jak bozia przykazała.
Cześć, pozwolę sobie odgrzebać temat.
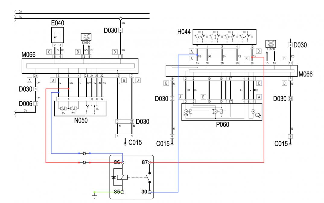
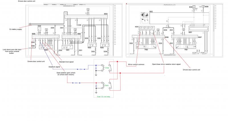
W poszukiwaniu informacji na temat automatycznego składania lusterek w 159 trafiłem na post na alfaowner, gdzie użytkownikowi Stevolution udało się dokonać fizycznej modyfikacji dającej oczekiwany efekt. Niestety oryginalnie wrzucony schemat jest bardzo kiepskiej jakości:
Załącznik 253499
przerysowałem go na nowo, nieco upraszczając:
Załącznik 253497
Nie do końca rozumiem dlaczego w pierwotnej wersji autor użył dwóch przekaźników, gdzie z mojej chałupniczej wiedzy o elektronice wystarczy w zupełności jeden (diody i tak rozdzielają obwody) - może ktoś będzie w stanie wskazać błąd w moim rozumowaniu.
Nie mogę wrzucać zewnętrznych linków (za mało postów), więc wklejam treść oryginalnego posta
Cały wątek można znaleźć po wpisaniu w wyszukiwarkę "159 SW auto close mirrors". Niestety nie mam obecnie warunków, żeby sprawdzić to rozwiązanie, ale przynajmniej w teorii wygląda rozsądnie, a przy tym dość łatwo w realizacji - wszystkie potrzebne wtyczki są podłączone do modułu w drzwiach kierowcy (M066).Cytat:
OK. 20 minutes with a multimeter... this is where we are at.
Agreed - Deadlock feed is preferable (and probably what I will use). I planned to feed the module with an ignition feed, so that the mirrors didn't fold automatically unless the ignition key was out.
I thought the 'fold' button was latching, but it isn't. Its simply a press button.
The feed to the door locks appears to be the standard 3 wires. Common Ov (chassis), a positive signal to lock the doors, and a positive signal to deadlock the doors.
When the doors are unlocked, these cables reverse polarity and the common chassis feed becomes a 12v pulse and the other two become chassis - thus unlocking both motors together.
We just need to take a feed off the deadlock 12v signal - put it through a signal diode (to prevent a backfeed operating the locks) and power the 'close mirrors' signal on our relay.
The 'open mirrors' signal is taken from the common door motor feed. Again through a signal diode.
The original 'open/close' push button will do exactly as it used to.
Looking at the drivers side, all this can be accomplished on the M066 drivers side control module - mounted in the door panel.
I am hoping to find a male and female connectors that mate with the connections to the M066 panel. Then we can simply have a tiny 'plug and play' box that plugs into the existing loom and requires no cutting.
For those who want it optional, then a simple small black latching push button could be inserted and mounted on the door controls somewhere. I don't think you need that however.